HOUSES AWARDS

We are super proud to announce our beloved Perfpad project has been shortlisted in the prestigious Houses Awards!

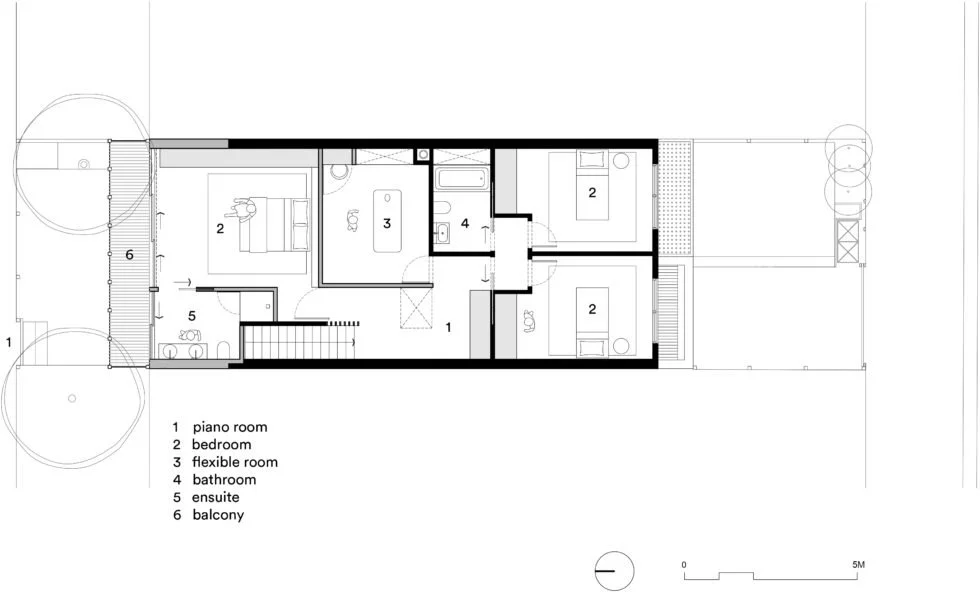
Q: Provide a brief project description. 

Nestled amongst a row of drab developer townhouses, there is one glimmer of hope – a carefully considered home offering flexibility & functionality for a young family that pursues ‘less but better’ approach.

Q: What is the conceptual framework of the project - including underlying principles, values, sustainable initiatives, core ideas and/or philosophy?

We all know those low-rise, low quality, rendered blueboard residential developments that congregate within close proximity to brilliant public amenity such as transport, shopping districts, parks & marketplaces – this house was ‘Exhibit A’.A lack of privacy, cold dark interiors, rotting timber doors & leaky roof were some of the notable features of the 18 year old, 2 storey, 3 bedroom townhouse. The owners, soon-to-be parents of twin girls, considered selling up & moving, but the incredible amenity offered by the location had them hooked.Examining the potentials of the existing townhouse & exposed inner-urban site against the brief & budget, Northbourne quickly determined the third storey requested by the owners was not a feasible solution. Instead, a ‘less but better’ approach was encouraged.A shifted focus to achieve more with less gave rise to the creation of meaningful, thoughtful, purposeful space designed to simplify, yet enhance the sensual pleasures of daily life.It was soon ascertained a functional, flexible, light-filled home suitable for both budget & requirements of a growing family could be achieved with just a very small first floor addition & simple, yet carefully crafted re-plan of the existing home & outdoor space. Quality over quantity.

Q: What contribution does the design make to the lives of the inhabitants?

Inbuilt flexibility and functionality means the inhabitants can stay put to reap the benefits of an engaging location and thoughtful, tailored home design. Reductive convenience distils the splendour of the home. Purposeful design minimises the need for ‘things’, reducing clutter, creating calm, allowing more time to focus on one another as a family or with guests. The perforated skin softly envelops the home, washing the spaces and inhabitants with a rhythmic dappled sunlight that soothes the soul. The master suite’s improved layout immerses the inhabitants into the treetops, connecting them to nature, yet providing privacy from the street.

Q: What is the relationship of the built form to the context of the project? 

The building sits comfortably nestled amongst a row of townhouses in a gritty inner-urban street boarded by the Prahran market, the train line and commercial road. The expressed horizontal datum lines of the house tie in with those of its neighbours. Its volume does not interrupt the rhythm of the street. The new bright white perforated metal façade however, shifts away from the surrounding dreariness as a glowing glimmer of hope.

Q: Program resolution – how does the functional performance match the clients’ brief? 

A new ‘flexible room’, improved functionality of the master suite & new formal entry provide lifestyle flexibility, work-from-home opportunities & future-proofing for the young family. Low maintenance perforated fences and cladding create a functional, light-filled private sanctuary for the occupants, secure from the active 24-hour neighbourhood.  Full height glazing & raised timber decks finish flush with the internal floor level. This provides improved spatial flow, extends the usable space and utilises the whole site. The continuous line of joinery along the eastern wall extends into the courtyard enhancing the visual connection, adds much needed storage and an outdoor cooking zone.

Q: Integration of allied disciplines - how have the contributions of others, including architects, interior designers, landscape architects, builders and other specialists, helped achieve the outcome?

The consultant team on this project was small, comprising of an architect, a structural engineer and building surveyor who all worked harmoniously to produce a refined building. In addition, a communicative and open relationship between architect and builder during construction working through the detail was paramount to the success of this project.

Q: Cost/value outcome - how effective were the decisions related to financial issues?

Encouraging our client to reduce the scope of work and to take a ‘less but better’ approach was not only a fiscally rewarding outcome, it meant greater consideration and care could be applied to a smaller area to make the project work more efficiently and effectively. Northbourne incorporated a passive environmental approach, creating cross ventilation pathways, protective summer shading, access to winter sun & utilised where possible, sustainable finishes & materials throughout. These techniques have a minimal impact on construction cost, however, minimise ongoing costs and environmental impact.

Previous
Previous

NORTHBOURNE LOVES........

Next
Next

NORTHBOURNE featured in Houses Magazine